FARA COMISION
Constructie de P+ 2
Etaje, in suprafata utila de 183.27 mp + o terasa de 25.60 mp, situata in
Palazu Mare, pe malul lacului Sutghiol.
Imobilul este amplasat pe un teren in suprafata de 500mp, cu
o deschidere de 15 ml.
Compartimentarea si dispunerea camerelor si a suprafetelor
utile este:
La Parter: (Suprafata utila este de 86.02 mp)
- Living spatios in suprafata de 30.54mp
- Dormitor sau Birou in suprafata de14.64mp
- O Bucatarie in suprafata de 12.75mp cu acces si catre
curtea din spate
- O baie de service in suprafata de 7.83mp
- Hol + Casa Scarii in suprafata de 20.26mp
La Etajul 1: (Suprafata utila este de 78.62 mp)
- Dormitor in suprafata de 14.20mp
- Dormitor in suprafata de 19.51mp
- Dormitor in suprafata de 13.53mp
- O baie in suprafata de 3.15mp
- O baie in suprafata de 5.32mp
- Un Dressing in suprafata de 7.39mp
- Hol + Casa Scarii in suprafata de 15.52mp
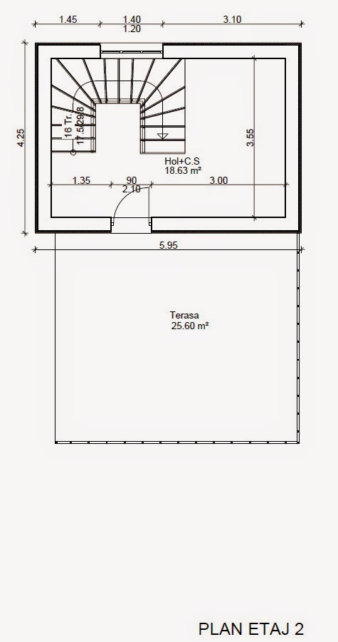
La etajul al II lea: (Suprafata utila este de 18.63 mp + o
terasa de 25.60mp )
- Hol + Casa Scarii si Accesul catre Terasa: 18.63mp
- Terasa cu Vedere la Lacul Sutghiol in suprafata de 25.60mp
Stadiul Constructiei este la Rosu.
Are ferestre cu 7 camere VEKA montate.
Pretul este de 82 000 Euro Negociabil.
Pret per mp construit: 316 Euro
CONTACT
Cosmin NICHITA
0766 057 100
cosmin.nichita@live.com









0 comentarii:
Trimiteți un comentariu